! Großer Bürokomplex mit sehr guter Verkehrsanbindung in Emmerich am Rhein zu verkaufen !
Beschreibung:
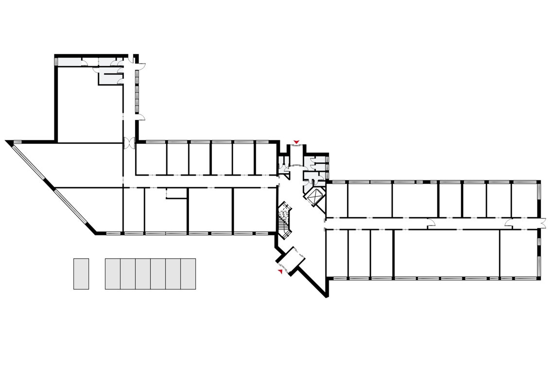
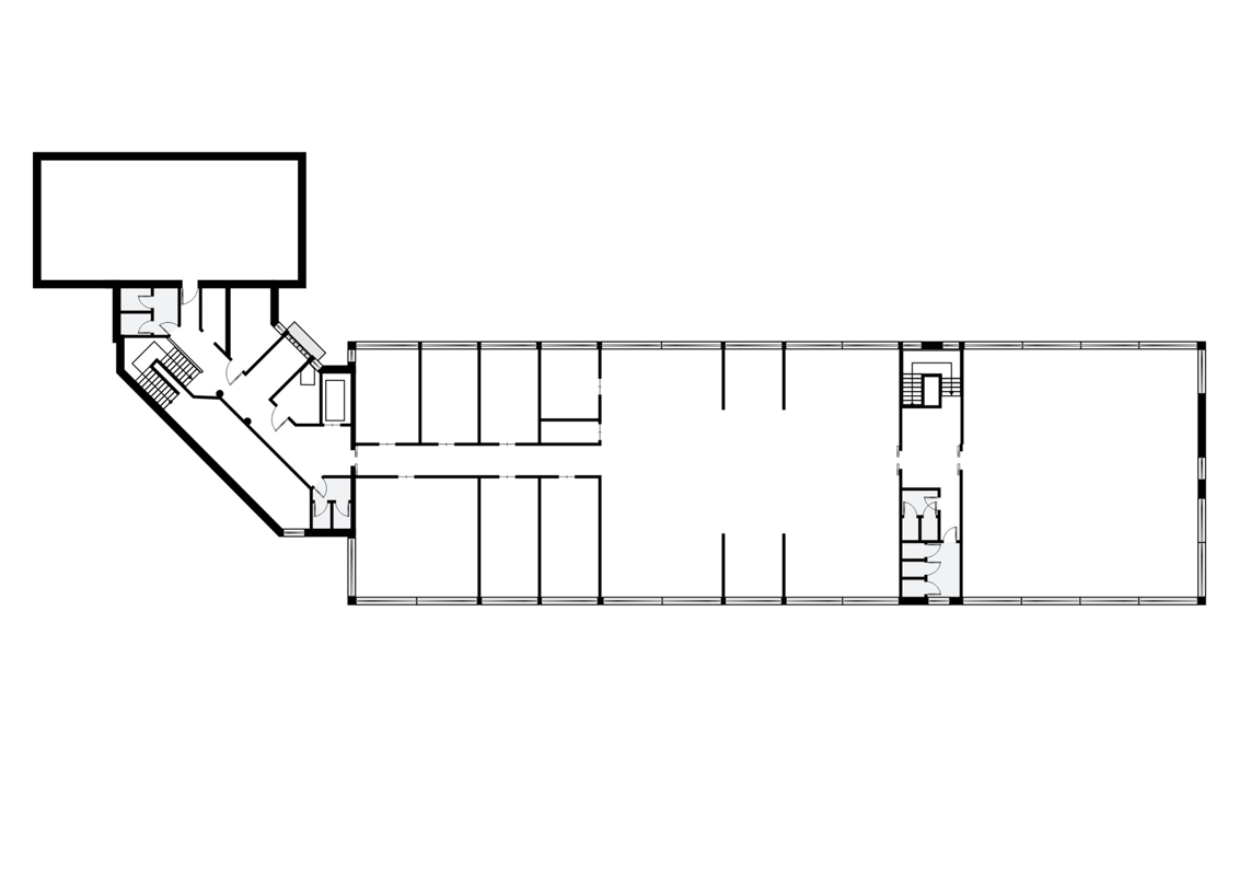
Zum Verkauf steht eine große Büro-Gewerbeimmobilie auf einem Grundstück von insgesamt 14.615 qm mit insgesamt 140 Stellplätzen und einer Gebäudefläche von 5.823 qm. Das Gebäude wurde im Jahr 1987 erbaut und im Jahr 1993 erweitert.Im Gebäudes befinden sich Büroflächen von insgesamt 3.174 qm. Es gibt eine hohe Flexibilität bei der Gestaltung der Büroräume dank der leichten Bauweise ihrer Trennwände. Derzeit werden die Büros in Standardgrößen von 18 qm, 36 qm und größer angeboten. In diesem Teil der Anlage befindet sich auch eine Kantine (aktuell nicht im Betrieb).
Die Lagerfläche von 1.242 qm verteilt sich auf zwei Ebenen, wobei die Deckenhöhe im Erdgeschoss bei 3,6 m und im Obergeschoss bei 2,6 m liegt.
Die Fenster des Gebäudes sind mit Aluminiumrahmen gefertigt und verfügen über eine Doppelverglasung. Die Fenster sind von außen mit einem UV-Filter versehen und sind dadurch nur schwer einsehbar.
Die Heizungsanlage des Gebäudes ist aus dem Jahr 1987 und wird mit Gas als primärem Energieträger betrieben.
Zur Zeit sind 1.966 qm Bürofläche und 968 qm Lagerfläche vermietet, somit wird aktuell eine monatliche Netto-Kaltmieteinnahme von ca. 16.744,83 € erwirtschaftet. Es bietet somit eine attraktive Investitionsmöglichkeit für gewerbliche Zwecke.
Zudem enthält das über 14.500 qm große Grundstück eine Freifläche von ca. 2.500 qm welch durchaus beachtenswert ist, allerdings müssten die Möglichkeiten durch eine Bauvoranfrage ausgelotet werden.
Lagebeschreibung:
Emmerich am Rhein ist eine Hansestadt am rechten unteren Niederrhein im Nordwesten des Bundeslandes Nordrhein-Westfalen. Als mittlere kreisangehörige Stadt gehört sie zum Kreis Kleve im Regierungsbezirk Düsseldorf. Die Gewerbeimmobilie liegt am Stadtrand von Emmerich und ist von der Infrastruktur ca. 2,8 km zum nächsten Autobahnzubringer (A3), zum Hafenterminal ca. 2,5 km, zum Bahnhof 1,6 km und zur nächsten Bushaltestelle 0,7 km entfernt.Ausstattung:
Energieausweis:
- Baujahr:
- 1987
Ausstattungsbeschreibung:
Baujahr: 1987Netto Kaltmiete p.a.:
- Bürofläche (vermietet) = ca. 163.866 €
- Lagerfläche (vermietet) = ca. 37.072 €
- Bürofläche (noch zu vermieten) = ca. 82.620 €
- Lagerfläche (noch zu vermieten) = ca. 13.086 €
Rendite:
- Gesamt Mieteinnahme mit Lehrstand = ca. 200.938,00 €
- daraus ergibt sich eine Rendite von = 6,71 %
- Gesamt Miteinnahme ohne Lehrstand = 296.644,00 €
- daraus ergibt sich eine Rendite von = 9,90 %
Bürofläche:
- ca. 3.170 qm
- vermietet = 1.966 qm
Lagerfläche:
- ca. 1.242 qm
- vermietet = 968 qm
Kantine:
- teilausgestattet (ca. 188 qm)
Grundstück:
- gesamt = 14.615 qm
Unbebaute Flächen:
- ca. 2.500 qm (nur durch Bauanfrage planbar)
WC D/H:
- Empfang = EG 4, OG 4
- Kantine = EG 4
- Anbau = EG 3, EG 4 / EG 3, OG 4
WC-B:
- Empfang = EG 2, OG 1
Heizung:
- Baujahr = 1987
- Energieträger = Gas
Fahrstühle:
- Empfang = 1
- Anbau = 1
Parkplätze:
- ca. 140 Stück
- Fahrradständer überdacht
Sonstige Angaben:
Verpassen Sie keine Immobilie mehr!Unser komplettes Immobilienangebot finden Sie immer zuerst auf www.remax.de
Gerne helfen wir Ihnen auch beim Verkauf oder der Vermietung Ihrer Immobilie.
Karriere bei REMAX?
Infos: www.remax.de/karriere
Sie wollen mehr erfahren?
Wenn Sie uns eine Nachricht über das Kontaktformular senden, melden wir uns schnellstmöglich bei Ihnen:





























