Bürozentrum - Miete - Emmerich

Büroflächen mit sehr guter Verkehrsanbindung im Business Center Emmerich am Rhein zu vermieten !

Emmerich
Objektart
Büro/Praxen
Objekttyp
Bürozentrum
Vermarktungsart
Miete
PLZ
46446
Ort
Emmerich
Bürofläche
3.170 m²

Beschreibung:

Sie mieten ein Büro im Businesscenter Emmerich am Rhein.
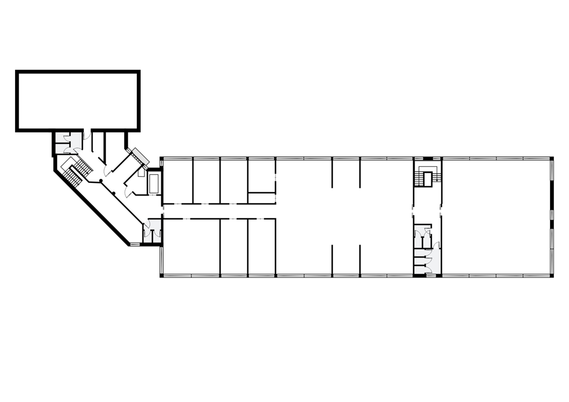
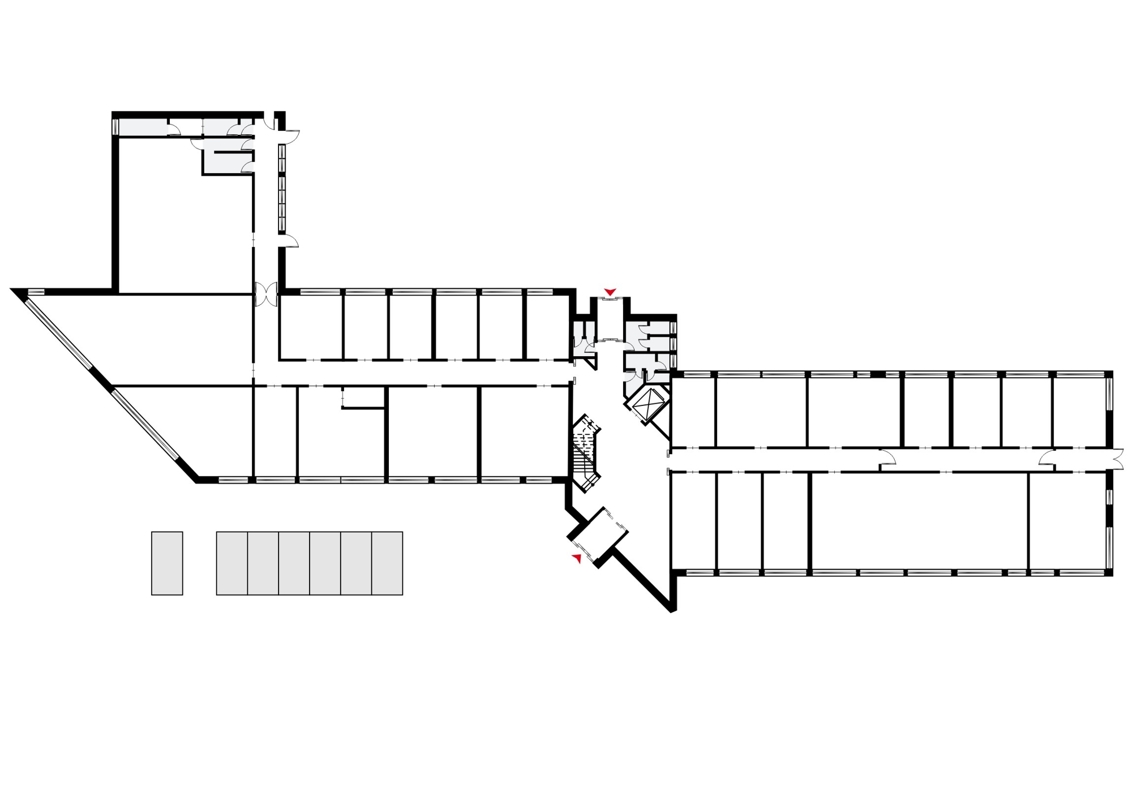
In dem Gebäude befinden sich Büroflächen von insgesamt 3.174 qm. Es gibt eine hohe Flexibilität bei der Gestaltung der Büroräume dank der leichten Bauweise der Trennwände. Derzeit werden Büros in Standardgrößen von 18 qm, 25 qm, 36 qm oder größer angeboten.

Darüber hinaus besteht auch die Möglichkeit, Lagerflächen und Parkplätze zu mieten.

Die Fenster des Gebäudes sind mit Aluminiumrahmen gefertigt und verfügen über eine Doppelverglasung. Die Fenster sind von außen mit einem UV-Filter versehen und sind dadurch nur schwer einsehbar.
Die Heizungsanlage des Gebäudes ist aus dem Jahr 1987 und wird mit Gas als primärem Energieträger betrieben.

Lagebeschreibung:

Emmerich am Rhein ist eine Hansestadt am rechten unteren Niederrhein im Nordwesten des Bundeslandes Nordrhein-Westfalen. Als mittlere kreisangehörige Stadt gehört sie zum Kreis Kleve im Regierungsbezirk Düsseldorf. Die Gewerbeimmobilie liegt am Stadtrand von Emmerich und ist von der Infrastruktur ca. 2,8 km zum nächsten Autobahnzubringer (A3), zum Hafenterminal ca. 2,5 km, zum Bahnhof 1,6 km und zur nächsten Bushaltestelle 0,7 km entfernt.

Ausstattung:

Energieausweis:

Baujahr:
1987

Ausstattungsbeschreibung:

Bürofläche:
- 18 m²
- 25 m²
- 36 m²
- 50 m²
- 100 m²
- 250 m²

Baujahr:
- 1987
- 1993 (Anbau)

Stockwerk:
- 2 Vollgeschosse

Fußboden:
- Laminat
- Teppich

Heizung:
- Energieträger = Gas

WC D/H:
- Empfang = EG 4x, OG 4x
- Kantine = EG 4x
- Anbau = EG 3x, EG 4x / EG 3x, OG 4x
WC-B:
- Empfang = EG 2x, OG 1x

Fahrstühle:
- Empfang = 1x
- Anbau = 1x

Parkplätze:
- ca. 140 Stück
- Fahrradständer überdacht

Lager:
- ca. 120 m² frei

Sonstige Angaben:

Verpassen Sie keine Immobilie mehr!
Unser komplettes Immobilienangebot finden Sie immer zuerst auf www.remax.de
Gerne helfen wir Ihnen auch beim Verkauf oder der Vermietung Ihrer Immobilie.
Karriere bei REMAX?
Infos: www.remax.de/karriere
Armin Becker
Armin Becker
Armin Becker Immobilien
+49 (0) 2822 965404 0

Dokumente

PDF-Exposé
Jeder Lizenznehmer ist ein rechtlich eigenständiges Unternehmen und handelt auf eigene Rechnung und Verantwortung.