Angebot für Investoren 2 Eigentumswohnungen in einem MFH in Emmerich am Rhein mit 8 % Bruttorendite
Beschreibung:
In dieser ursprünglich als 6 Familienhaus gebauten Immobilie aus dem Jahr 1952 sind die Wohneinheiten verändert (zusammengelegt) worden, sodass es dadurch nur 4 Parteien gibt.Angeboten wird eine zusammengelegte 100,46 qm große Wohnung im Erdgeschoß. (Ursprünglich waren das 2 Wohneinheiten mit 55,15 qm und 45,31 qm) und eine 45,31 qm Wohnung im 2. OG.
Die Wohnungen sind im Jahr 2019 saniert worden und machen einen gepflegten Eindruck.
Beide Wohnungen sind vermietet, gezahlt wird eine Nettokaltmiete von insgesamt 1.700 € monatlich. Als "all in" Miete zahlen die Mieter z.Zt. 2.250,00 € mtl. Eine Endabrechnung der Nebenkosten hat in den vergangenen Jahren nicht stattgefunden.
Im Keller befinden sich 3 Kellerräume die zu den Wohneinheiten gehören.
Geheizt wird über eine Gaszentralheizung aus dem Jahr 2004
Lagebeschreibung:
Diese Wohnungen befindet sich in zentraler Lage von Emmerich am Rhein, einer Stadt, die für ihre Lage am Rhein bekannt ist.Für Familien mit Kindern ist die infrastrukturelle Anbindung optimal: Ein Kindergarten und eine Grundschule sind jeweils nur 2 Kilometer entfernt und leicht erreichbar. Das nahegelegene Gymnasium ist lediglich einen Kilometer entfernt und somit bequem zu Fuß oder mit dem Fahrrad erreichbar. Diese kurzen Distanzen machen den Alltag besonders unkompliziert und stressfrei, da die Bildungseinrichtungen problemlos und in kurzer Zeit zu erreichen sind.
Ausstattung:
Energieausweis:
- A+
- A
- B
- C
- D
- E
- F
- G
- H
- Baujahr:
- 1952
- Endenergieverbrauch:
- 183,5 kWh/(m²a)
- Energieausweis:
- Verbrauchsausweis
- Energieeffizienzklasse:
- F
- Energieausweis gültig bis:
- 24.04.2035
- wesentlicher Energieträger:
- Gas
- Baujahr lt. Energieausweis:
- 2004
Ausstattungsbeschreibung:
Wohnung im 2. Obergeschoß- Wohnen und Essen 19,07 qm
- Schlafzimmer 13,94 qm
- Küche 4,11 q,
- Badezimmer 3,29 qm
- Flur 3,74 qm
- Balkon 5,16 qm(innenliegend
Kaltmiete 470,00 € mtl zzgl 180,00 € Nebenkosten = 650,00 €
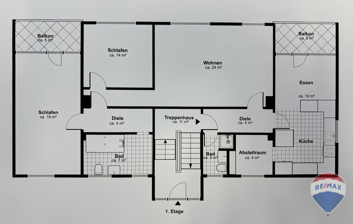
Wohnung im Erdgeschoß
Das waren ursprünglich 2 Wohnungen mit 55,15 qm und 45,31 qm
- Küche und Essen ca. 19 qm
- Diele ca. 4 qm
- Balkon ca. 5 qm
- Wohnen ca. 24 qm
- Schlafen 1 ca. 14 qm
- Schlafen 2 und Wohnen ca. 19 qm
- Balkon ca. 5 qm
- Diele ca 4 qm
- Abstellraum ca. 4 qm
- Bad ca. 3 qm
- Bad ca. 7 qm
Kaltmiete 1.230,00 € zzgl. 370,00 € Nebenkosten = 1.600,00 €
Sie wollen mehr erfahren?
Wenn Sie uns eine Nachricht über das Kontaktformular senden, melden wir uns schnellstmöglich bei Ihnen: