Reserviert Reihenhaus - Kauf - Emmerich

Großes Reihenmittelhaus mit 2 Einheiten & Ausbaureserve, sanierungsbedürftig!

125.000 €
Emmerich
Objektart
Haus
Objekttyp
Reihenhaus
Vermarktungsart
Kauf
PLZ
46446
Ort
Emmerich
Zimmer
8
Schlafzimmer
4
Badezimmer
2
Wohnfläche
150 m²
Grundstück
268 m²
Etagenzahl
2
vermarktungsstatus
Reserviert

Beschreibung:

Top Gelegenheit für Kapitalanleger oder Handwerker – Reihenmittelhaus mit Potenzial, möglich wären bis zu 3 Wohneinheiten.
Dieses renovierungsbedürftige Reihenmittelhaus aus dem Baujahr 1949 bietet eine super Gelegenheit für Kapitalanleger, Eigennutzer oder handwerklich Begabte. Mit einer bestehenden Wohnfläche von ca. 150 m² und einem Grundstück von ca. 195 m² eröffnet diese Immobilie vielseitige Nutzungsmöglichkeiten – ob als Mehrgenerationenhaus, zur Vermietung oder zum Eigennutz.
Aktuell ist das Haus in zwei separate Einheiten im Erdgeschoss (derzeit noch Gewerbe) und Obergeschoss (Wohnung) aufgeteilt. Das Dachgeschoss bietet zusätzliches Ausbaupotenzial – nach entsprechender Genehmigung wäre hier eine dritte Wohneinheit realisierbar.

Das Objekt ist voll unterkellert und verfügt über einen kleinen Garten zur individuellen Gestaltung. Eine funktionierende Heizungsanlage ist nicht vorhanden, jedoch bestehen bereits ein Gasanschluss sowie Heizkörper – die Grundlage für den Einbau einer Zentralheizung ist somit gegeben.

Haus in renovierungs- bzw. modernisierungsbedürftigem Zustand.

Fazit:
Ein solides Haus mit Entwicklungspotenzial in attraktiver Lage – ideal für Investoren, Projektentwickler oder Handwerker mit Vision.
Nutzen Sie diese seltene Gelegenheit und verwandeln Sie dieses Objekt in ein modernes Zuhause oder eine rentable Kapitalanlage!

Lagebeschreibung:

Emmerich ist eine mittelgroße Stadt mit über 33.000 Einwohnern, direkt am Rhein, die sich besonders durch die schöne Rheinpromenade auszeichnet. Die Stadt liegt genau im Fadenkreuz zwischen Arnheim (NL), Wesel, Kleve und Bocholt. Ein erheblicher Vorteil der Stadt liegt in der sehr guten Infrastruktur, durch die Anbindung an die A3 und den Bahnhof der Richtung Düsseldorf und Richtung Arnhem Züge aussendet. Die zu vermarktende Immobilie liegt im Stadtkern direkt in der Fußgängerzone von Emmerich.

Ausstattung:

Energieausweis:

Baujahr:
1949

Ausstattungsbeschreibung:

Die wichtigsten Eckdaten im Überblick:

Reihenmittelhaus, Baujahr ca. 1949
Grundstücksfläche: ca. 195 m²
Wohnfläche: ca. 150 m²
2 bestehende Wohneinheiten (EG + OG)
EG: Gewerbe, 4 Räume, Flur, Bad, Gäste-WC
OG: Wohnung, 5 Räume, Flur, Bad, Wintergarten (nicht genehmigt)
Dachgeschoss ausbaufähig (nach Genehmigung)
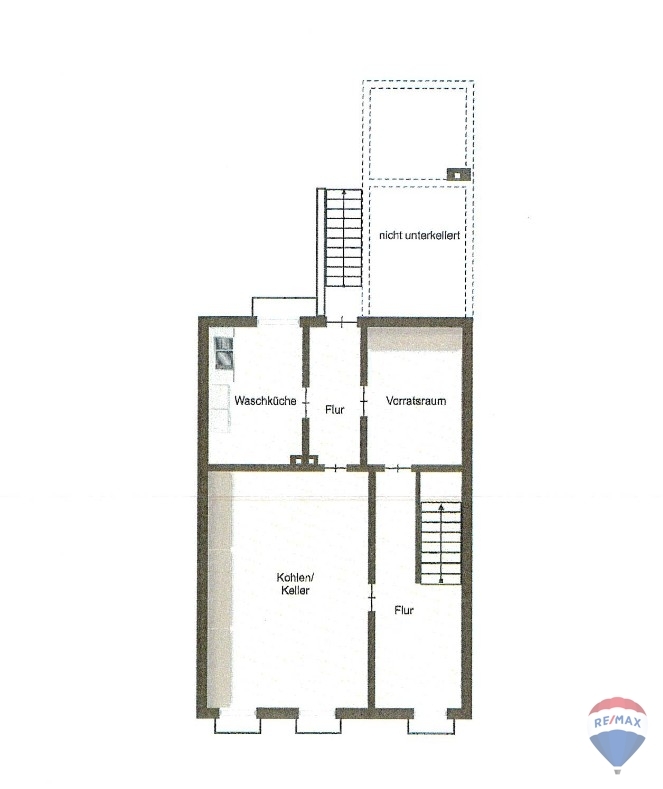
Voll unterkellert
Kelleraußentreppe
Kleiner Garten vorhanden
Keine funktionierende Heizung, aber Gasanschluss und Heizkörper vorhanden
2 Gasanschlüsse, 2 Stomzähler

Sonstige Angaben:

Keine Immobilie mehr verpassen!
Entdecken Sie unser vollständiges Immobilienangebot – immer topaktuell auf www.remax.de.

Sie möchten verkaufen oder vermieten?
Wir unterstützen Sie gerne mit unserer Erfahrung und unserem Netzwerk.

Karriere bei RE/MAX?
Erfahren Sie mehr unter www.remax.de/karriere.
Franziska Schönberg
Franziska Schönberg
Remax in Goch
02823 919 07 10

Dokumente

PDF-Exposé
Jeder Lizenznehmer ist ein rechtlich eigenständiges Unternehmen und handelt auf eigene Rechnung und Verantwortung.